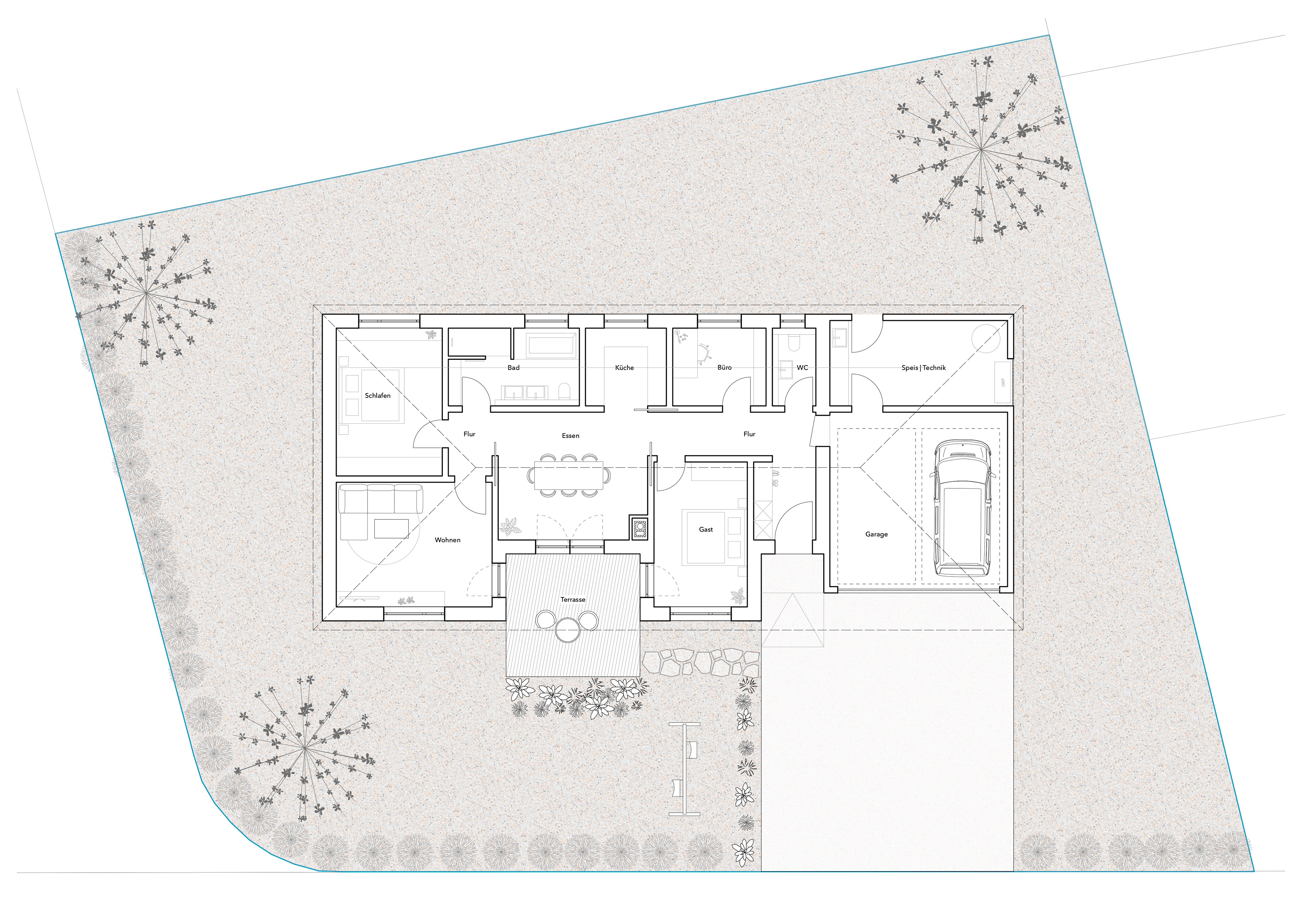
Auf einem der wenigen unbebauten, grünen Grundstücke im Münchner Stadtgebiet entsteht ein eingeschossiger Neubau in Holzbauweise, entworfen für ein aktives, lebensnahes Rentnerpaar – mit einem offenen Blick ins Grüne und einem klaren Fokus auf Lebensqualität bis ins hohe Alter.
Der Baukörper vereint das Wohnhaus und die Doppelgarage unter einem Dach und gibt sich nach Außen mit Zurückhaltung und Klarheit. Alle Räume orientieren sich in ihrer Organisation an den Prinzipien der Übersichtlichkeit, kurzen Wege und einer klaren Struktur.
Reduziert auf das Wesentliche und doch mit architektonischem Feingefühl entwickelt, schafft der Neubau Raum für einen neuen Lebensabschnitt – leicht, natürlich und zukunftsorientiert.

Baugrundstück
Grundriss
Ansicht

Bodenplatte


Prüfung Bodenbeschaffenheit


Mörtelbett für den Holzbau
