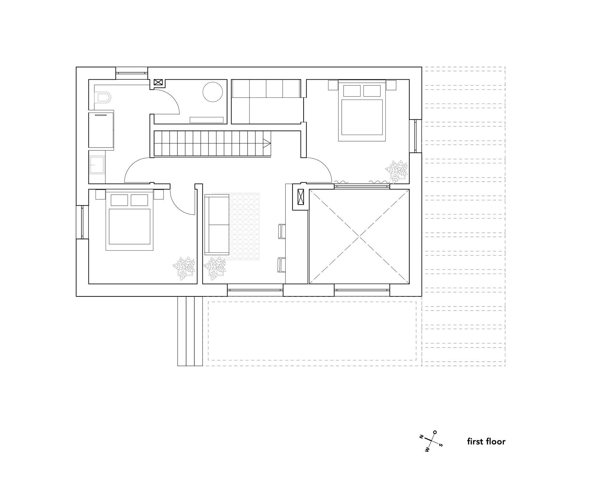
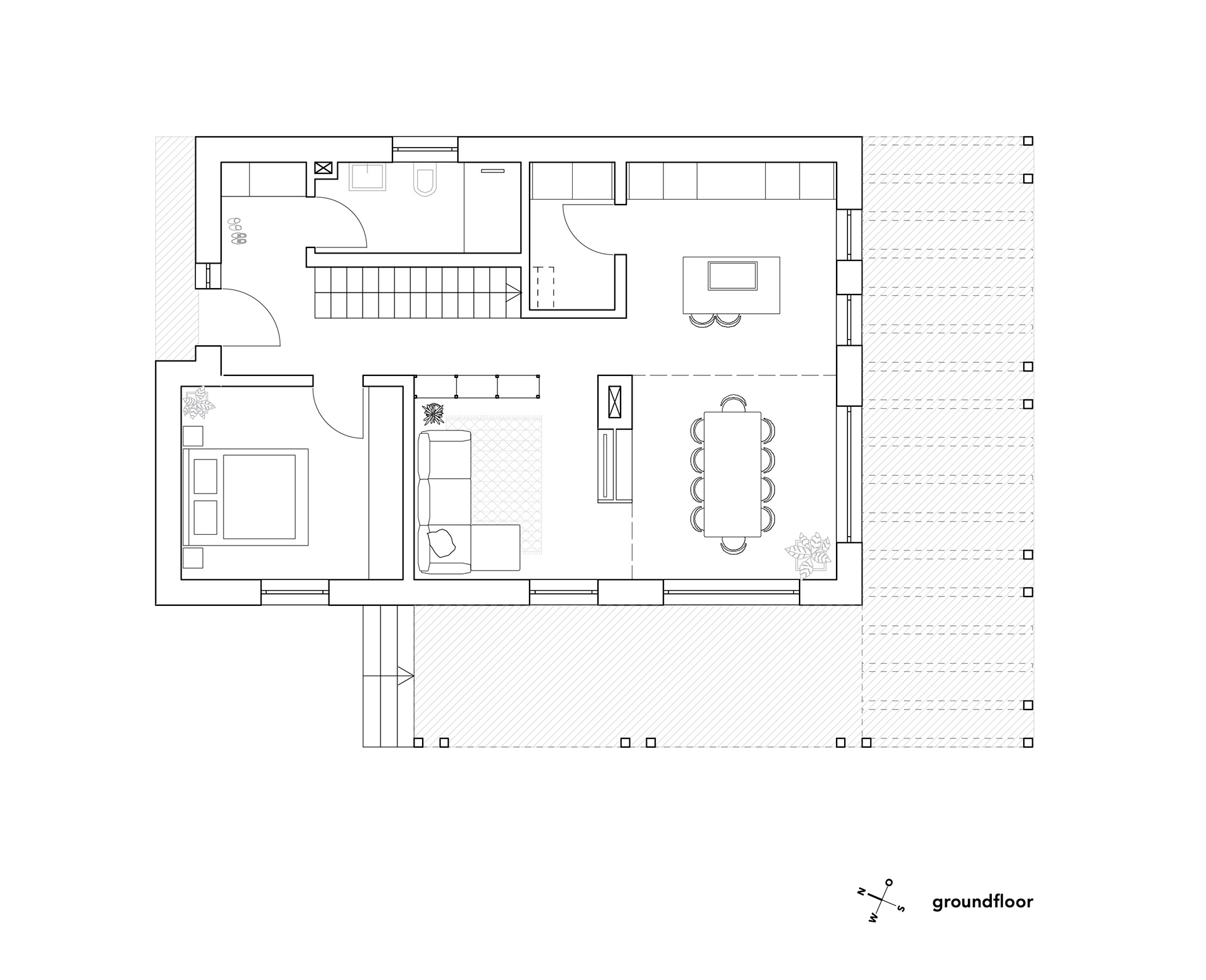
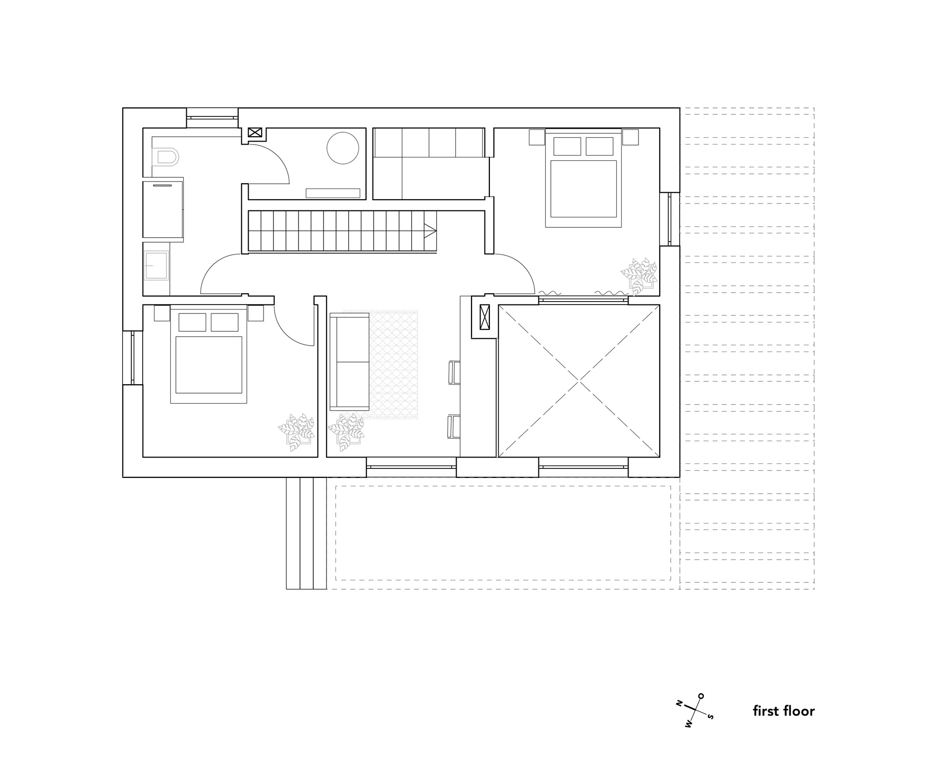
Projekt Nr. 5 | Pantin, Nordspanien
Als Ferienhaus konzipiert soll das Projekt auf einem Hügel zwischen zwei Buchten in Galizien ca. 1,5 Stunden nördlich von Santiago di Compostela entstehen. Die kleine Ortschaft Pantin besitzt zwar keinen eigenen Supermarkt, dafür allerdings einen naturbelassenen Strand, der mit seinen Wellen Surfer aus nah und fern anzieht.
Das Grundstück befindet sich am höchsten bebaubaren Punkt zwischen den beiden Buchten Praia de Pantin und Praia de Baleo. Von hier aus zieht es den Blick automatisch Richtung Westen zum Strand von Pantin, was uns als Grundlage für die Ausrichtung des Baukörpers dienen wird.
In Pantin scheint sich die Erde etwas langsamer zu drehen. Auf dem selben Breitengrad wie Portugal gelegen, durch seine westliche Lage ist es in den Sommermonaten sehr lange hell. Durch diesen gefühlten Stillstand der Zeit lädt das Örtchen zum Entspannen und zur Achtsamkeit ein.
Die Besonderheit bei diesem Projekt ist die Zusammenarbeit mit einem lokalen Architekten. Dieser wird uns im Laufe der Planung dabei unterstützen, die örtlichen mikroklimatischen Bedingungen und die Bodenbeschaffenheit in den Entwurf einfließen zu lassen.
Wir sind gespannt auf das Ergebnis und halten euch auf dem Laufenden!
















