
Umbau und energetische Sanierung einer Doppelhaushälfte in München
Die bestehende Doppelhaushälfte aus dem Jahr 1975 im Münchner Stadtteil Großhadern wurde im Rahmen einer umfassenden Sanierung baulich, energetisch und räumlich neu interpretiert. Ziel war es, die Qualitäten des Bestands zu erhalten, funktionale Defizite zu beheben und das Gebäude in eine zeitgemäße, nachhaltige Wohnnutzung zu überführen.
Der Massivbau mit Holzdachstuhl und Stahlbetondecken wurde hinsichtlich seiner Hülle vollständig energetisch ertüchtigt. Eine Fassadendämmung wurde ergänzt und die Dachdämmung erneuert, Fenster und Haustüre ausgetauscht, eine Flächenheizung installiert und die technische Gebäudeausstattung auf ein modernes Niveau gebracht. Eine Photovoltaikanlage ergänzt das neue Energiekonzept.
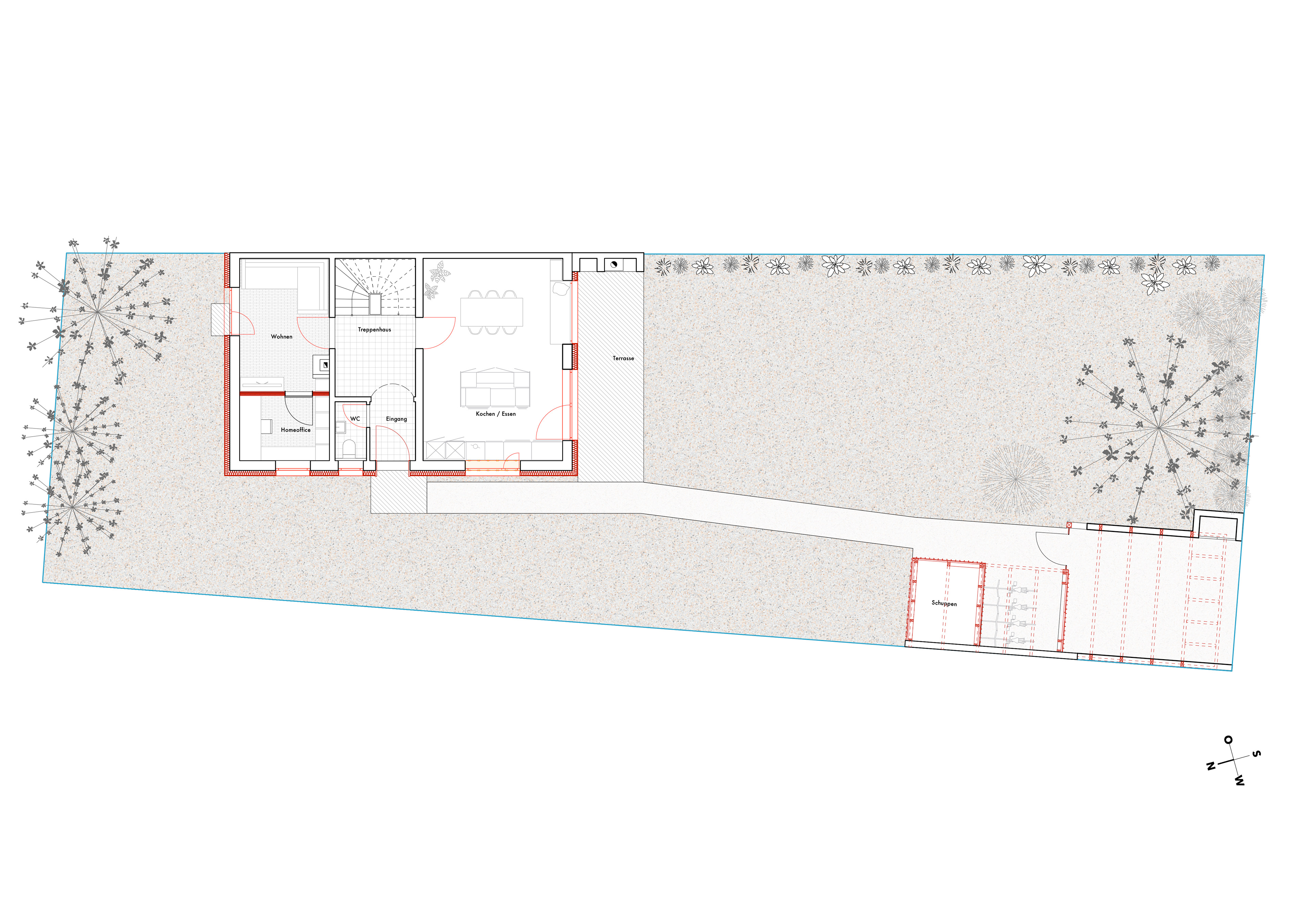
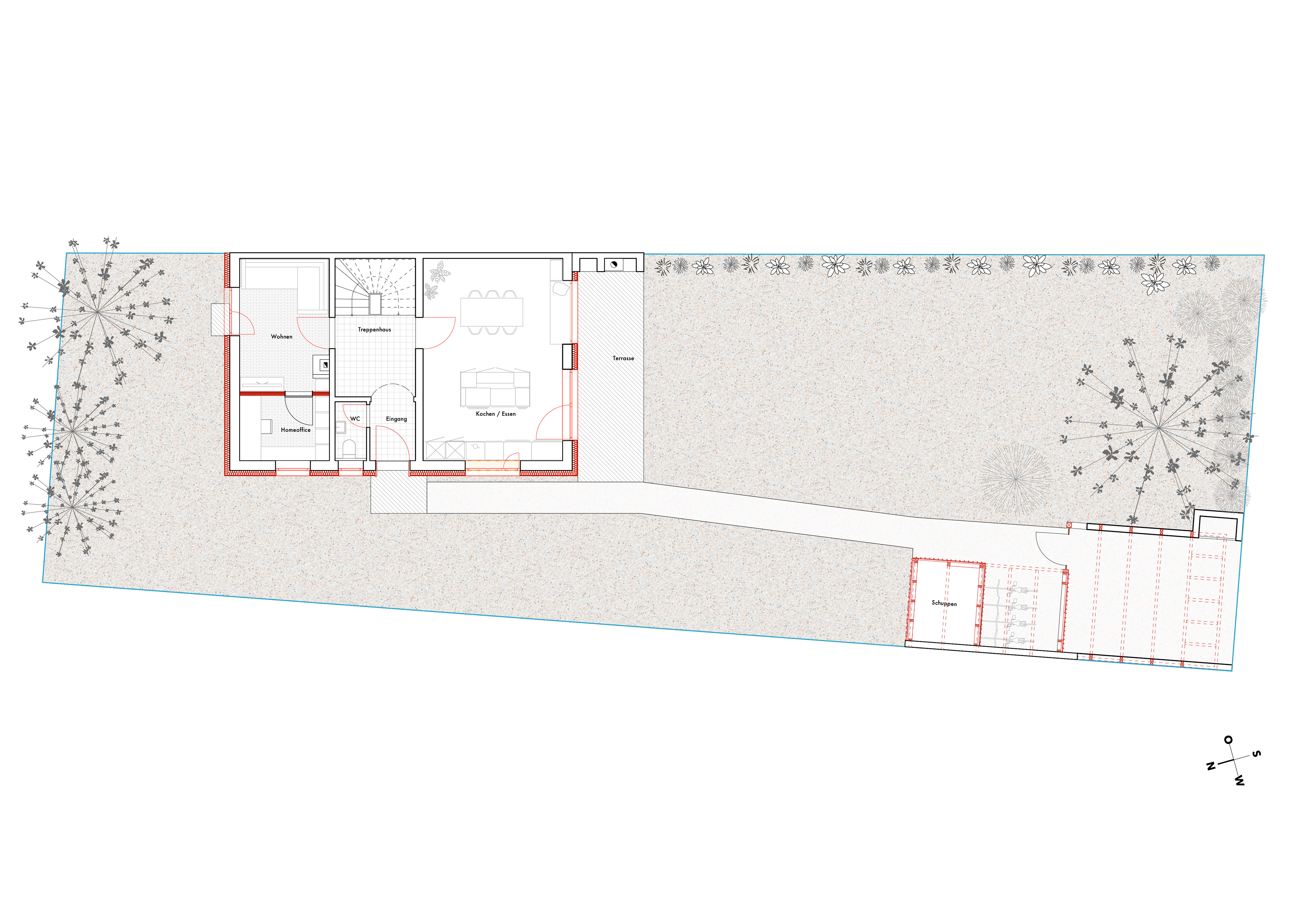
Im Innenraum wurde die Küche als zentraler Wohnbereich im ehemaligen Wohnzimmer situiert, während der frühere Küchenraum als kombinierter Wohn- und Arbeitsbereich neu genutzt wird. Bäder, Bodenbeläge und Oberflächen wurden vollständig überarbeitet und der bislang ungenutzte Dachraum ausgebaut.
Das Projekt steht exemplarisch für einen verantwortungsvollen Umgang mit Bestandsbauten im städtischen Kontext – mit dem Ziel, durch präzise Eingriffe und nachhaltige Planung neue Wohnqualitäten zu schaffen.

Vorher

Nachher

Vorher

Nachher

Vorher

Nachher

Vorher

Nachher
Erdgeschoss
Obergeschoss
Dachgeschoss





















