
Gartenansicht mit Außenpool
Zukunftsfähige Architektur für den Natznerhof – Tradition weiterbauen mit nachhaltiger Vision
Der Natznerhof, seit 1978 von der Familie Klement geführt, steht für gelebte Tradition, regionale Identität und herzliche Gastfreundschaft. Um diesen Charakter in die Zukunft zu tragen, wurde ein ganzheitliches Konzept für die architektonische Erweiterung und behutsame Modernisierung des Hofes entwickelt. Ziel ist es, ein zeitgemäßes Zusammenspiel von Tradition und Moderne zu schaffen, das den Bedürfnissen der Gastgeberfamilie ebenso gerecht wird wie den Erwartungen der Gäste.
Bei diesem Projekt konnte Studio JL gemeinsam mit dem langjährigen Freund und ortsansässigen Kollegen Wolfgang Heinz zusammenarbeiten und gemeinsam ein Konzept entwickeln, welches den örtlichen Gegebenheiten gerecht wird und sich in die Umgebung einfügt.
Die architektonische Gestaltung des Erweiterungsbaus respektiert die bestehende Struktur des Hofes und ergänzt sie durch zwei klare, parallel verlaufende Satteldächer. Ein zurückhaltender Holzbau mit präzise gegliederter Fassade thront auf einem massiven Naturstein-Sockel – eine Kombination, die sowohl Beständigkeit als auch zeitgenössische Leichtigkeit ausstrahlt.
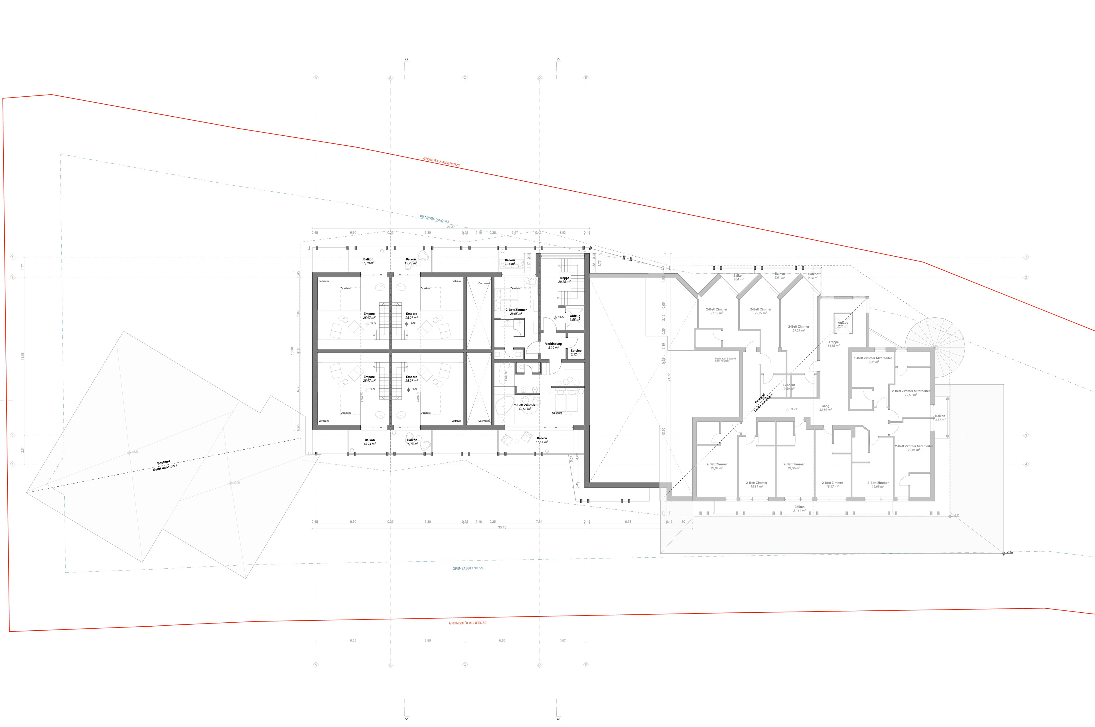
Im Inneren wurden die bestehenden Funktionen intelligent neu organisiert und erweitert. In den unteren Ebenen schafft eine vergrößerte Tiefgarage Raum für Ankommen und die Verbindung zum Bestand. Darüber öffnet sich ein großzügiger Wellnessbereich mit neuem Indoor-Pool, einem Multifunktionalen Raum für Yogakurse, einem Fitnessbereich sowie angrenzenden Sanitär- und Hauswirtschaftsflächen. Das Erdgeschoss beinhaltet die neugestaltete Eventfläche für Hochzeiten oder Tagungen, welche sich mit einer neu gestalteten Eingangssituation in die Umliegenden Obst und Weinfelder orientiert. Restaurant und Küche wurden neu konzipiert und architektonisch miteinander verwoben. In den Obergeschossen befinden sich komfortable Standardzimmer, Suiten und Familienzimmer, teils mit offenen Emporen, die ein großzügiges Raumgefühl erzeugen.
Auch im Außenbereich setzt sich die klare Gestaltung fort: Ein neu gestalteter Garten mit Außenpool auf der Südseite erweitert das Wellnessangebot, während auf der Nordseite ein barrierefreier Zugang zum Eventbereich geschaffen wurde.
Der neue Natznerhof steht für eine zukunftsorientierte Hotelarchitektur, die Nachhaltigkeit, ästhetische Zurückhaltung und funktionale Klarheit vereint.
Bestand
Neubau
2.Untergeschoss
1.Untergeschoss
Erdgeschoss
1.Obergeschoss
2.Obergeschoss







